Omschrijving

Sfeervolle, uitgebouwde eengezinswoning, gelegen op een heerlijk rustige en groene plek met aan de voor- en achterzijde veel ruimte en privacy. De woning is op de begane grond uitgebouwd en heeft daarmee een ruime woonkamer met een apart eetgedeelte. De keuken is in de voormalige berging ondergebracht. Aan de voorzijde is de woning gelegen aan een mooie vijverpartij; de straat is rustig: er komt alleen bestemmingsverkeer. De tuin grenst…

Lees meer

Kenmerken

  • Status Verkocht onder voorbehoud
  • Vraagprijs € 475.000,- kosten koper
  • Woonoppervlakte ca. 129 m2
  • Aantal slaapkamers 5
  • Bouwjaar 1978
Meer kenmerken

Meer informatie nodig?

Neem vrijblijvend contact op met ons kantoor

Aspekt Makelaars

Bekijk op Google Maps


Bekijken

Omschrijving

Sfeervolle, uitgebouwde eengezinswoning, gelegen op een heerlijk rustige en groene plek met aan de voor- en achterzijde veel ruimte en privacy. De woning is op de begane grond uitgebouwd en heeft daarmee een ruime woonkamer met een apart eetgedeelte. De keuken is in de voormalige berging ondergebracht. Aan de voorzijde is de woning gelegen aan een mooie vijverpartij; de straat is rustig: er komt alleen bestemmingsverkeer. De tuin grenst aan de achterzijde aan de Randijk en een park. Door de twee dakkapellen en de uitbouw is dit een zeer ruime woning geworden met een woonoppervlakte van maar liefst 129 m². Door de kunststof kozijnen is er nauwelijks onderhoud; alleen de voordeur en openslaande deuren in de keuken zijn nog van hout. De locatie is in één woord geweldig!

Indeling:
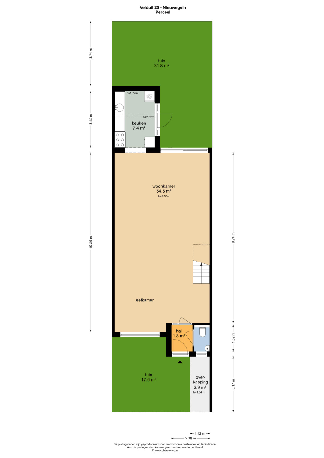
Begane grond: Entree, hal, toilet, toegang naar de woonkamer. De woonkamer is maar liefst 54,5 m² groot, met aan de voorzijde de plek van de eettafel waar je heerlijk zicht op de vijver hebt. Vanuit het zitgedeelte aan de achterzijde heb je mooi zicht op de bomen van het park en de knusse tuin. De keuken is in de voormalige berging geplaatst. Een open trap vanuit de woonkamer geeft toegang tot de verdieping.

1e verdieping: Overloop, drie slaapkamers van respectievelijk ca. 13 m², 7 m² en 9 m². De badkamer heeft lichte tegels, een ligbad met (stort)douche, een wastafelmeubel met twee wasbakken en een tweede toilet.

2e verdieping: Overloop, voorzolder met bergruimte en de wasmachineaansluiting, welke ook een slaapkamer is (20,8 m²), en een vijfde slaapkamer van 10,2 m². Speels gevormde slaapkamers, beiden met een dakkapel.

Bijzonderheden:
– Uitgebouwde eengezinswoning.
– Woning is voorzien van 5 slaapkamers.
– De woonkamer is echt heel ruim en op vele manieren in te delen.
– Bijna geheel voorzien van kunststof kozijnen met isolatieglas.
– In 2020 is de woning voorzien van nieuwe gevelbekleding (kunststof).
– Woning is voorzien van 2 dakkapellen.
– Gezellig aangelegde tuin met veel groen en in de voortuin een overkapping voor fietsen etc.
– Prachtige ligging aan een rustige straat.
– Achterzijde gelegen aan de Randijk en een ruim park.
– Aan de voorzijde gelegen aan een vijverpartij.
– Oplevering: in overleg.

Meer informatie nodig?

Neem vrijblijvend contact op met ons kantoor

Aspekt Makelaars

Bekijk op Google Maps


Bekijken

Kenmerken

Overdracht

  • Status Verkocht onder voorbehoud
  • Vraagprijs € 475.000,- Kosten koper
  • Aanvaarding In overleg

Bouwvorm & Onderhoud

  • Soort woonhuis Tussenwoning
  • Soort bouw Bestaande bouw
  • Bouwjaar 1978
  • Soort dak Zadeldak
  • Onderhoud binnen Goed
  • Onderhoud buiten Goed

Oppervlakten & inhoud

  • Gebruiksoppervlakte wonen ca. 129 m2
  • Oppervlakte gebouwgebonden ca. 4m2
  • Externe bergruimte
  • Overige inpandige ruimte
  • Inhoud ca. 439m3
  • Perceeloppervlakte ca. 134m2

Indeling

  • Aantal kamers 6 kamers
  • Aantal slaapkamers 5
  • Aantal badkamers 1 badkamer
  • Badkamervoorzieningen Toilet, douche, dubbele wastafel
  • Aantal woonlagen 3 woonlagen
  • Voorzieningen Mechanische ventilatie, tv kabel, natuurlijke ventilatie

Energie & Installatie

  • Energielabel B
  • Isolatie Dakisolatie, muurisolatie, vloerisolatie
  • Verwarming Stadsverwarming
  • Warm water Doorstroomboiler
  • C.v.-ketel type
  • C.v.-ketel bouwjaar
  • Eigendom

Tuin & Buitenruimte

  • Ligging In woonwijk
  • Hoofdtuin
  • Oppervlakte hoofdtuin
  • Ligging hoofdtuin
  • Achterom
  • Kwaliteit tuin

Bergruimte

  • Schuur / berging
  • Aantal schuren / bergingen
  • Voorzieningen

Parkeergelegenheid

  • Parkeerfaciliteiten Openbaar parkeren
  • Garage Geen garage

Documenten

Weet je al wat de huidige woning waard is?

WAARDEBEPALING